Zvolte si typ nemovitosti

Nemovitosti

Třípodlažní mezonetový byt „E“

Plocha podlahová:
167 m2
Plocha zahrady:
341 m2
Plocha balkonu:
67 m2
Plocha terasy:
17 m2
Parkování:
garáž, venkovní stání
Cena:
24.800.000,-
Popis nemovitosti:

Třípodlažní mezonetový byt „E“ se nachází v domě se třemi mezonetovými bytovými jednotkami. Nabízí dispozici 5+kk o celkové ploše 234 m² (byt 167 m² + balkony 67 m²), samostatný vstup, garáž pro 2 auta (22,9 m²), 1 venkovní parkovací místo a soukromou zahradou o výměře 276 m² s bazénem. Celková plocha pozemku činí 355 m².


Technologie a vybavení v ceně bytu:
• inteligentní domácnost – systém automatického centrálního řízení domu (řízení vytápění, chlazení, stínění, zabezpečení, zavlažování a všech ostatních technologií)
• bazén 3×6 m (s vyhříváním a protiproudem )
• rekuperace se zpětným získáváním tepla
• klimatizace
• tepelné čerpadlo v kombinaci s plynovým kotlem
• fotovoltaické panely
• podlahové vytápění v celém domě včetně garáže
• automatická závlaha
• předokenní žaluzie
• infrasauna pro 2 osoby
• automaticky zatahované markýzy

V případě, že by o některou z nich kupující neměl zájem, je možné kupní cenu odpovídajícím způsobem upravit.

Dispoziční řešení
 

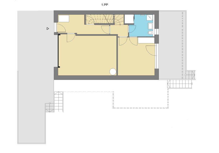
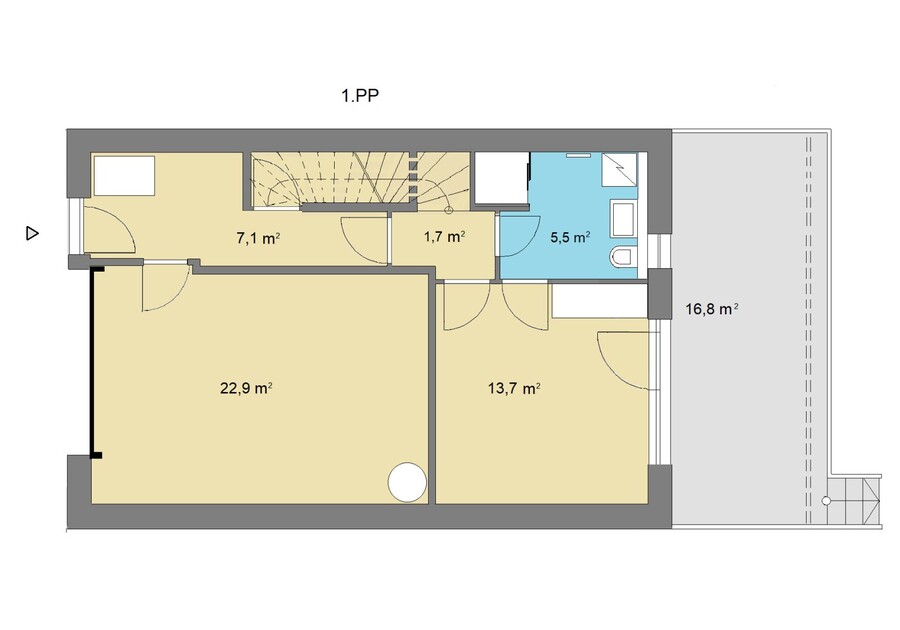
1. PP (částečně zapuštěné do terénu):
V 1. podzemním podlaží je jeden ze vstupů do domu, předsíň, garáž pro 1–2 auta, koupelna s WC a malý pokoj s infrasaunou, který může sloužit jako pracovna, posilovna či dílna. Z tohoto podlaží lze vyjít na zahradu přes částečně zapuštěnou terasu, která poskytuje dostatek soukromí pro posezení či grilování.
 

1. NP:
V 1. nadzemním podlaží se nachází nadstandardně světlý obývací pokoj s velkými okny a prostorem pro kuchyň a jídelní kout o výměře 48,8 m², s přístupem na přední balkon a přes zadní balkon také do zahrady. Dále je zde další vstup do domu, toaleta a šatna.

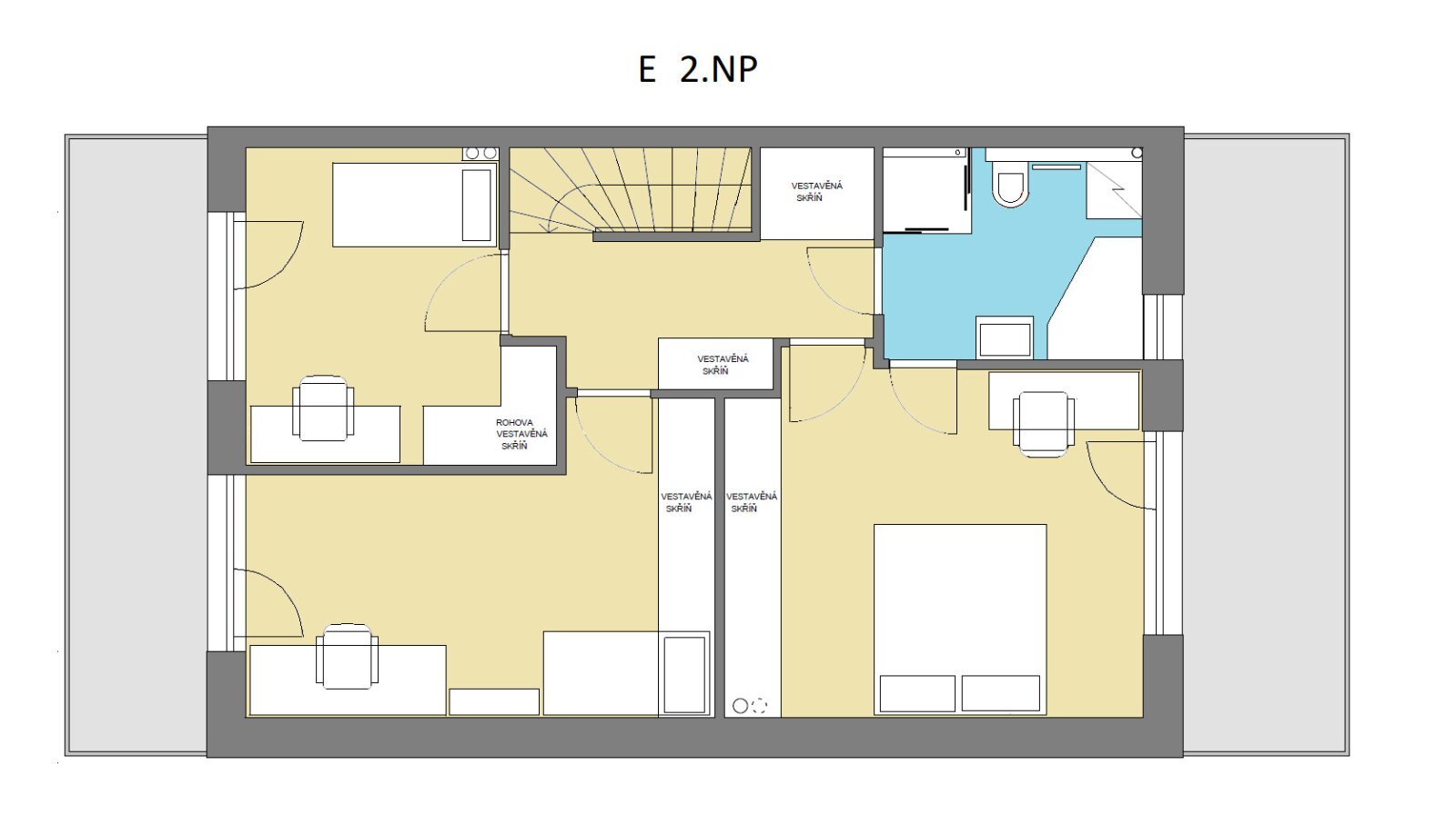
2. NP:
2. nadzemní podlaží tvoří klidovou zónu s ložnicí se samostatným vstupem na balkon směřující do zahrady, dalšími dvěma pokoji, z nichž každý má samostatný vstup na společný balkon. Zvýšené stropy dodávají prostoru světlo a vzdušnost. Na poschodí se nachází koupelna s WC.



 

Číslo bytu:
E
Rezervace:
Rezervováno
Stav objektu:
Novostavba
Konstrukce:
Smíšená
Umístění objektu:
Klidná část obce
Komunikace:
Asfaltová
Vydaný certifikát:
B - Velmi úsporná
Typ certifikátu:
vyhláška č. 264/2020 Sb
Makléř:
Ing. Vladimír Kremel
telefon: 602 292 515
vladimir.kremel@metropolreal.cz

Kontaktujte nás.

*
*
*
*
Odesláním formuláře souhlasíte se zpracováním osobních údajů
zoom